Crisp & clear 2D floorplans
Floorplanner makes it easy to export great-looking 2D floorplans in whatever style you want. Ranging from monochrome blueprint drawings to highly detailed, full-color floorplans that look great in any property development brochure.
On this page, you can find a range of examples of exports made from Floorplanner. None of these images are further adjusted or enhanced.

Popular for real estate listings
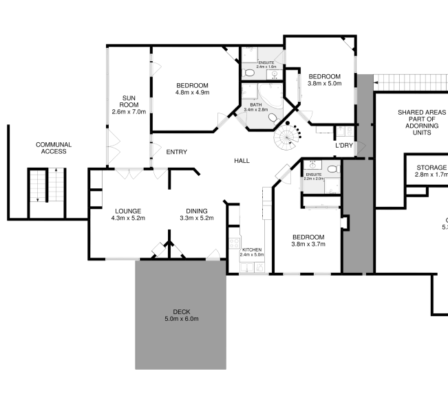
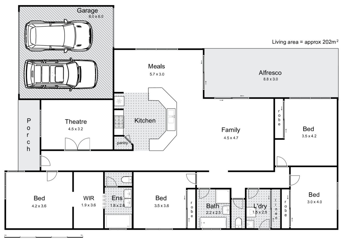
2D floorplans - Monochrome
Black & White floorplans are still in high demand, and for good reason. They are easy to read and reproduce, and they provide a good mix between technical & more general information. Floorplanner offers default black & white and blueprint modes, but with our templates, you can set your own color for walls in 2D.







Provide more info with colors
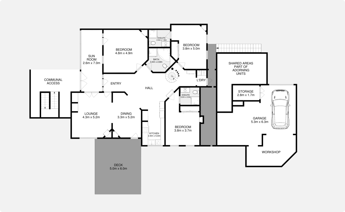
2D floorplans - Color Coded
Color-coded floorplans make it easy to see at a glance what the functions of certain spaces are. Especially useful for housing floorplans. Floorplanner allows you to build custom roomtypesets, so you can have a consistent, own color scheme for your company.







high quality visuals
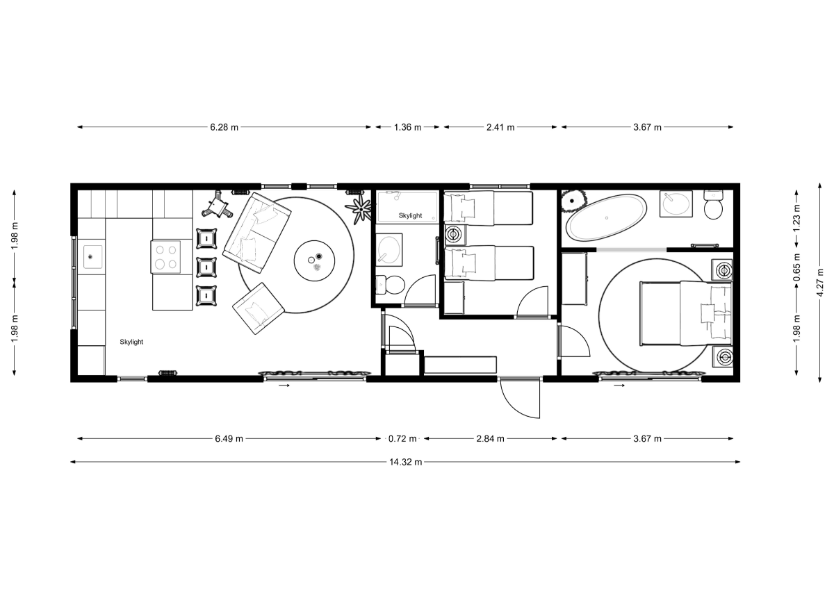
2D floorplans - Full Color
Floorplans really come to life in our full-color mode. Products & floors will have textures and shadows, and even lights will have a subtle effect on the floor. These floorplans will look great in brochures or on websites.








